Zweifeldhalle Stralendorf
Neubau als zweiter Bauabschnitt des gymnasialen Schulzentrums
Grundlage des Entwurfs ist eine umfassende Bedarfsanalyse zur Weiterentwicklung des Schulstandorts Stralendorf. Der festgestellte Raummangel machte eine funktionale und bauliche Erweiterung erforderlich. Der daraus resultierende zweite Bauabschnitt umfasst den Neubau der Zweifeldhalle Stralendorf zur Abdeckung des Sportunterrichts sowie für schulische und sportliche Veranstaltungen.
Der Entwurf basiert auf einer fundierten Bedarfsplanung und reagiert auf die topografischen Gegebenheiten des Ortes: Der kompakte, zweigeschossige Baukörper ist teilweise in das Gelände eingebettet und fügt sich damit behutsam in das dörfliche Umfeld ein. Die klare Kubatur bildet die funktionale Organisation im Inneren ab. Großformatige Verglasungen in den Eingangsbereichen und ein zurückgesetzter Zuschauerzugang gliedern das Volumen und erzeugen Offenheit.
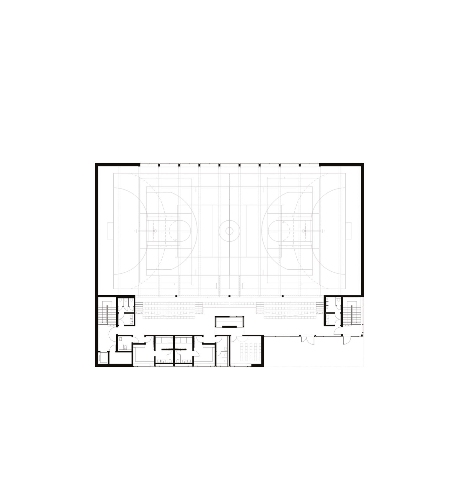
Funktionale Erschließung auf zwei Ebenen
Die Halle bildet den südlichen Abschluss des Schulcampus und steht in direkter Verbindung zu den bestehenden Außensportanlagen. Sie wird auf zwei Ebenen erschlossen: Sportlerinnen und Sportler betreten das Gebäude auf Hallenniveau von Westen, Zuschauer gelangen topografiebedingt über einen separaten Eingang im Obergeschoss ins Foyer.
Im Inneren organisiert sich die Halle um zwei separat nutzbare Hallenteile mit eigenen Gerätezonen, flankiert von großzügigen Umkleidebereichen für alle Nutzergruppen. Ein zentraler Schiedsrichter- und Sanitätsraum erlaubt die Sichtbeziehung in beide Hallen. Im Obergeschoss befinden sich weitere Umkleiden, ein Regieraum sowie ein kleiner Ausschankbereich für Veranstaltungen.
Raum und Wirkung
Gestalterisch spielt der Entwurf mit Kontrasten: Offenheit und Geschlossenheit, Massivität und Transparenz, kühle und warme Materialien. Eine strukturierte Holzfassade verleiht dem Baukörper Wärme und Gliederung, während die tragende Konstruktion aus Stahlbeton und Kalksandstein teils sichtbar im Inneren bleibt. Holzpaneele, Sichtbetonelemente und großflächige Glasöffnungen sorgen für eine ruhige, funktionale und einladende Atmosphäre.
Die Halle öffnet sich in Richtung Stadion, während sich die Trainingsräume geschützt zur rückwärtigen Obstbaumplantage orientieren. Das Flachdach wird mit einer Attika gefasst, die Fensterflächen erhalten Klimaglas für optimierten sommerlichen Wärmeschutz. Akustisch wirksame Materialien wie Lochdecken und Akustikpaneele in den Umkleiden, Fluren und Hallenteilen sorgen für eine angenehme Raumakustik bei vielfältiger Nutzung.
Unsere Leistungen
- Generalplanung
- Leistungsphasen 1 - 4
- Architektur
- Innenarchitektur
- Tragwerksplanung
- Elektroplanung
- Heizung-, Lüftungs- und Sanitärplanung
- Planung Gebäudeautomation
- Brandschutzplanung
- Wärmeschutzplanung
- Schallschutzplanung
Bearbeitung
- Matthias Leifels
- Annika Buchberger
- Alexander Albert
- Jana Böttcher
- Elektroplanung
- Ingenieurbüro Frank Dieball
- HLS-Planung
- Mecklenburgische Planungsgruppe Haustechnik
- Tragwerksplanung, Wärmeschutz und Schallschutz
- Ingenieurbüro Dr. Apitz









