abacus
Bürogebäude Wittenburg
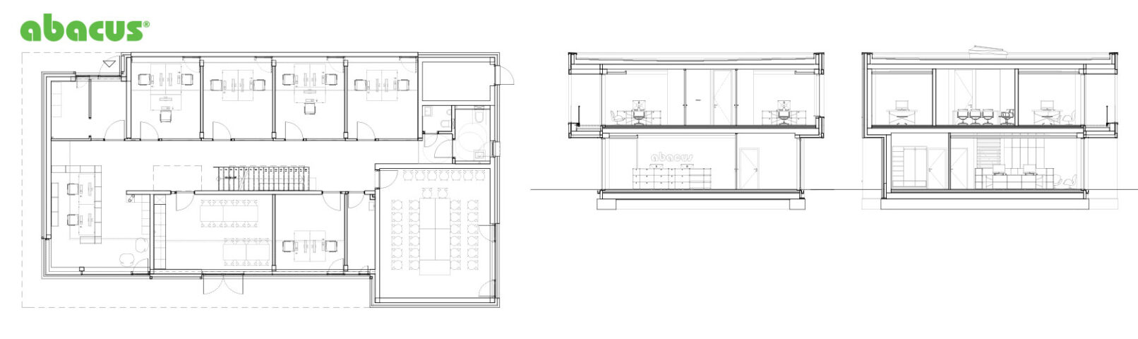
Im südlichen Gewerbegebiet der Stadt Wittenburg entstand ein zweigeschossiges Bürogebäude für ein ortsansässiges Software-Unternehmen.
Ziel des Entwurfs war es, eine gestalterische und strukturelle Klarheit mit einem differenzierten Innenraum für eine moderne Büronutzung zu kombinieren.
Von außen stellt sich das Gebäudevolumen als Kubus mit auskragenden Bauteilen dar.
Sämtliche Fassaden sind, der regionalen Identität folgend, in Backsteinmauerwerk ausgeführt.
Ein sandgrauer Klinker prägt die äußere Gestalt und trägt mit dem zurückspringenden, anthraziten Mauerwerk zum zeitlosen Erscheinungsbild des Gebäudes bei.
Großzügige, bandartige Verglasungen durchbrechen den Monolith und geben den Blick in die innere Arbeitswelt preis.
Im Inneren des Hauses offenbart sich dem Besucher eine ungeahnte räumliche Differenzierung: helle, fließende Räume – scheinbar ohne Trennung zwischen Innen und Außen, Ein- und Durchblicke, Holz, Eichenparkett, Sichtbetonwände prägen das Raumerlebnis.
Vom zentralen Empfangsbereich öffnen sich großzügige kommunikative Flurbereiche auf zwei Ebenen, die mit einer offenen Treppe an einer zentralen Sichtbetonwand verbunden sind.
Raumhohe Glastrennwände wechseln rhythmisch mit massiven, raumhohen Türelementen und trennen die Büros als Rückzugsbereiche für konzentriertes Arbeiten zu den Fluren.
Unsere Leistungen
- Architektur LPH 1-9
- Projektentwicklung
- Brandschutzplanung
- Innenraumgestaltung
- Außenanlagenplanung
Bearbeitung
- Matthias Leifels
- Stefan Rimpel
- Alexander Albert
- Claus Brandt
- Teilnahme Tag der Architektur 2015
- Teilnahme Landesbaupreis MV 2016
- (2. Wertungsrunde)
© Fotos
- Jörn Lehmann
- www.lehmann-photo.de


















